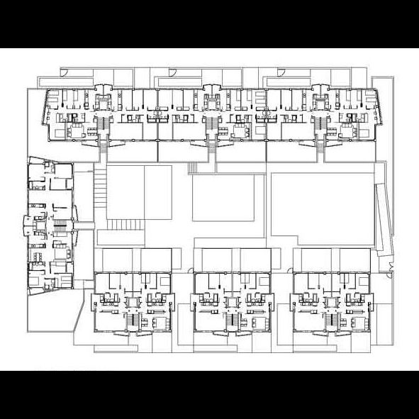
Edifício Residencial Lesseps

Edifício Residencial habitação pública.

Colaborador em projeto.
Estúdio de arquitetura Antonio Miralles e Ramón Martí

42 Unidades residenciais
De 70 a 120 m²

Promotor: Agência Pública Autonômica de habitação ADIGSA
Local: Bairro les Fonts, Cerdanyola.
Catalunha – Es.
Ano: 1993

C.